NEO130
ПРОЕКТ
КОММЕРЧЕСКОЕ ПРЕДЛОЖЕНИЕ
"ОПТИ" комплектация+ ТераССА:
6 155 600,00 руб.
Жми или сканируй,
чтобы увидеть технологию строительства
  • Фундамент: свайно-ростверковый
  • Стены: газобетон/кирпич, перегородки – газобетон 100 мм/ кирпич 120 мм
  • Кровля: из профилированного листа
  • Внешняя отделка фасадов и карнизов: декоративная штукатурка и строганная доска
  • Окна: энергосберегающие, с двойным стеклопакетом
  • Входная дверь: металлическая
  • Электрика: разводка к розеткам и выключателям по одной в комнате
  • Отопление: теплый пол во всех помещениях
  • Водоснабжение по дому
  • Пол: залит под черновую отделку
  • Стены внутренние: гипсовая штукатурка
  • Электрическая котельная: 9 кВт
  • Утепленная отмостка: мягкая утепленая отмостка с декоративным щебнем
  • Фундамент: свайно-ростверковый
  • Стены: газобетон / кирпич
  • Кровля: из профилированного листа
  • Внешняя отделка фасадов и карнизов: декоративная штукатурка и строганная доска
  • Окна: пластиковые, энергосберегающие, с двойным стеклопакетом
  • Входная дверь: металлическая
ЧТО ВХОДИТ:
ЧТО ВХОДИТ:
  • Срок строительства: 4 месяца
  • Строим дома из автоклавного газобетона и кирпича
  • Закрепляем стоимость строительства в договоре
  • Поможем с выбором участка и одобрением ипотеки
  • Технические узлы нашего дома соответствуют эксплуатации в Сибири
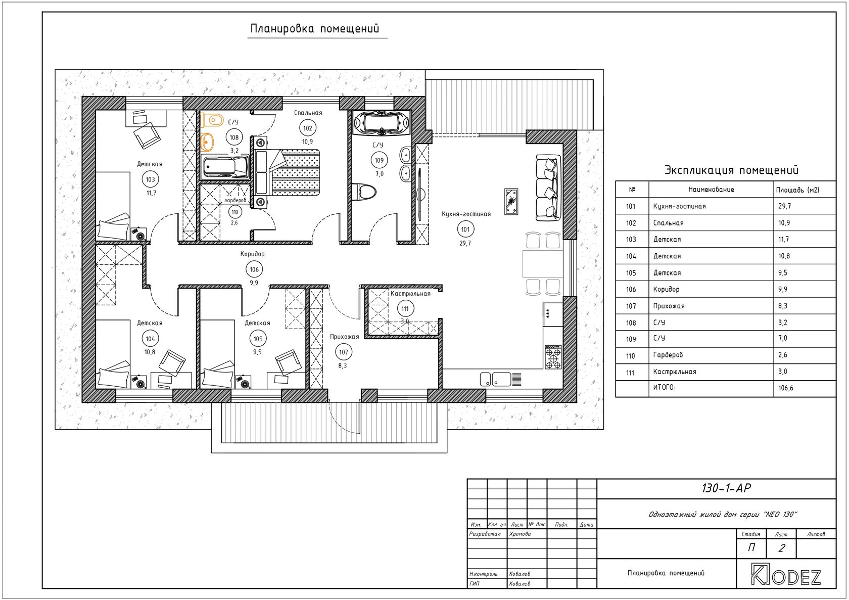
  • Одна кухня-гостиная с панорамными окнами и выходом на террасу.
На кухне - доп. помещение для хранения кухонной утвари площадью 3м²
  • Три спальни: одна из них – мастер-спальня со своим санузлом, гардеробной и дверью, детская и рабочий кабинет
  • Два санузла с местом для полноценной ванны
  • Два гардероба: в прихожей и в мастер-спальне
  • Тех.помещение на 3,5 м² для разводки электрики и всех труб
ПЛАНИРОВКА
NEO130
Площадь застройки: 130 м²
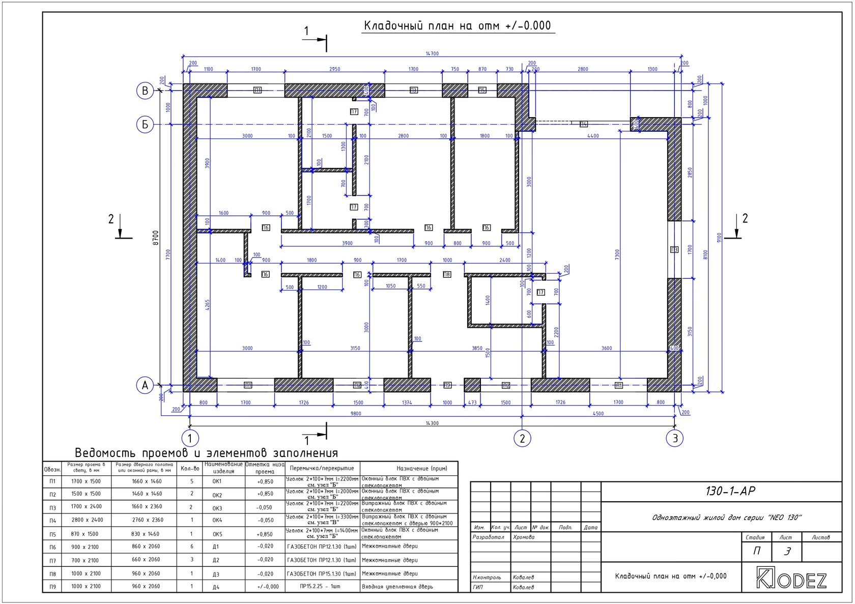
КЛАДОЧНЫЙ ПЛАН
NEO130
NEO130
Что входит в его работу:
  • Предварительное рассмотрение кредитной заявки
  • Формирование пакета документов для оформления заявки
  • Помощь клиентам в заполнении документов.
  • Информирование клиентов по ипотечным условиям в подходящих банках
  • Передача документов по кредитной заявке в выбранные банки
  • Контроль за процессами проведения одобренных кредитов
  • Консультирование клиентов по услугам дополнительного характера (ЭЦП, СБР, страхование и прочие), предоставляемых банком и его партнерами
  • Взаимодействие с коллегами (брокеры и менеджеры банков) в сфере кредитования
  • Составление и согласование необходимых документов для сделки
При оформлении договора на строительство или покупку готового дома от нашей компании мы предоставляем услуги ипотечного менеджера бесплатно
СВОЙ ИПОТЕЧНЫЙ МЕНЕДЖЕР
ПРЕДЧИСТОВАЯ ОТДЕЛКА
NEO130
Жми или сканируй, чтобы увидеть больше фотографий
ФАСАД
NEO130
Жми или сканируй, чтобы увидеть больше фотографий