• Срок строительства: 4 месяца
  • Строим дома из автоклавного газобетона или кирпича
  • Закрепляем стоимость строительства в договоре
  • Поможем с выбором участка и одобрением ипотеки
  • Технические узлы нашего дома соответствуют эксплуатации в Сибири
NEO86
ПРОЕКТ
КОММЕРЧЕСКОЕ ПРЕДЛОЖЕНИЕ
  • Фундамент: свайно-ростверковый
  • Стены: газобетон/кирпич, перегородки – газобетон 100 мм/ кирпич 120 мм
  • Кровля: из профилированного листа
  • Внешняя отделка фасадов и карнизов: декоративная штукатурка и строганная доска
  • Окна: энергосберегающие, с двойным стеклопакетом
  • Входная дверь: металлическая
  • Электрика: разводка к розеткам и выключателям по одной в комнате
  • Отопление: теплый пол во всех помещениях
  • Водоснабжение по дому
  • Пол: залит под черновую отделку
  • Стены внутренние: гипсовая штукатурка
  • Электрическая котельная: 9 кВт
  • Утепленная отмостка: мягкая утепленая отмостка с декоративным щебнем
  • Фундамент: свайно-ростверковый
  • Стены: газобетон / кирпич
  • Кровля: из профилированного листа
  • Внешняя отделка фасадов и карнизов: декоративная штукатурка и строганная доска
  • Окна: пластиковые, энергосберегающие, с двойным стеклопакетом
  • Входная дверь: металлическая
ЧТО ВХОДИТ:
ЧТО ВХОДИТ:
"ОПТИ" комплектация+ ТераССА:
5 224 200,00 руб.
Жми или сканируй,
чтобы увидеть технологию строительства
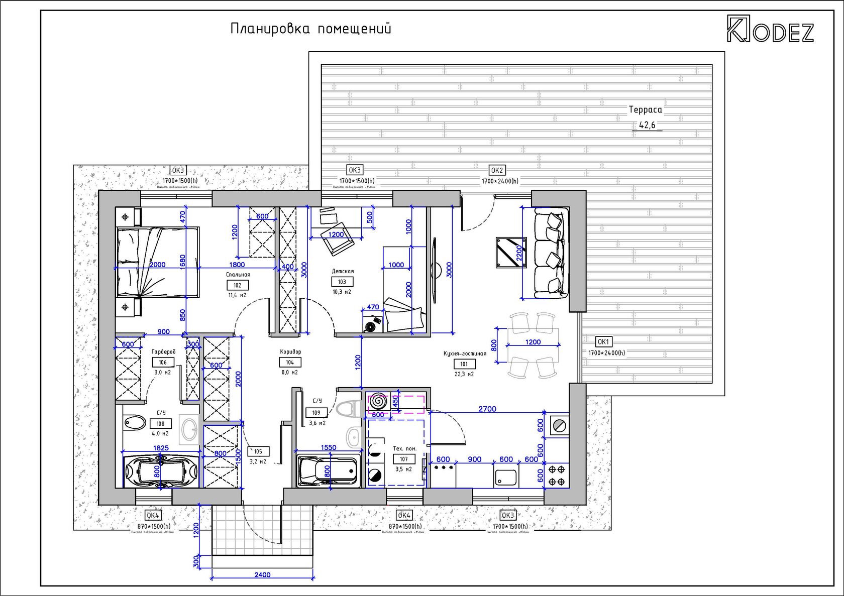
Площадь застройки: 86 м²
  • Одна кухня-гостиная с панорамными окнами и выходом на террасу
  • Две спальни: мастер-спальня со своим санузлом, гардеробной и детская
  • Один санузел с местом для полноценной ванны и санузел в родительской спальне
  • Два гардероба: прихожей и в мастер-спальне
  • Тех.помещение на 3,5 м² для разводки электрики и всех труб
ПЛАНИРОВКА
NEO86
КЛАДОЧНЫЙ ПЛАН
NEO86
NEO86
Что входит в его работу:
  • Предварительное рассмотрение кредитной заявки
  • Формирование пакета документов для оформления заявки
  • Помощь клиентам в заполнении документов.
  • Информирование клиентов по ипотечным условиям в подходящих банках
  • Передача документов по кредитной заявке в выбранные банки
  • Контроль за процессами проведения одобренных кредитов
  • Консультирование клиентов по услугам дополнительного характера (ЭЦП, СБР, страхование и прочие), предоставляемых банком и его партнерами
  • Взаимодействие с коллегами (брокеры и менеджеры банков) в сфере кредитования
  • Составление и согласование необходимых документов для сделки
При оформлении договора на строительство или покупку готового дома от нашей компании мы предоставляем услуги ипотечного менеджера бесплатно
СВОЙ ИПОТЕЧНЫЙ МЕНЕДЖЕР
ПРЕДЧИСТОВАЯ ОТДЕЛКА
NEO86
Жми или сканируй, чтобы увидеть больше фотографий
ФАСАД
NEO86
Жми или сканируй, чтобы увидеть больше фотографий